Trilocale in vendita

Roma, Via Francesco Tovaglieri - Tor Tre Teste
€ 239.000
Prezzo aggiornato
3 locali 3 locali
80 Mq 80 Mq
1 bagno 1 bagno

Trilocale in vendita

Roma, Via Francesco Tovaglieri - Tor Tre Teste

Descrizione annuncio

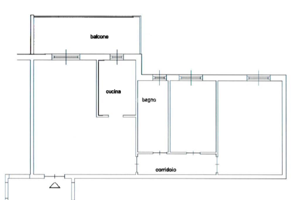
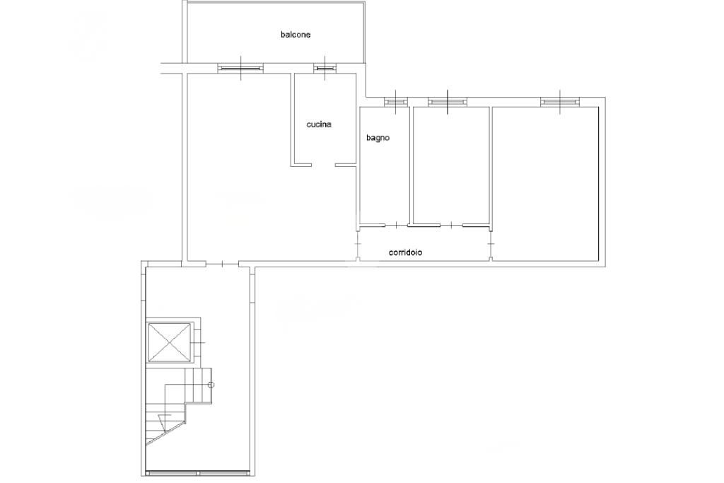
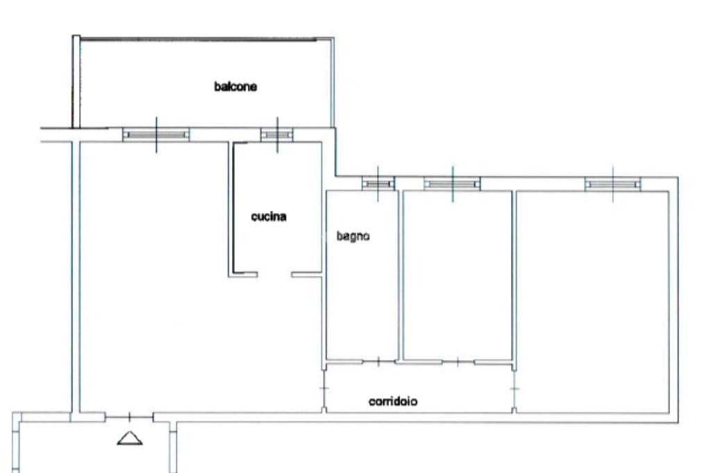
TOR TRE TESTE - Nel cuore di Tor Tre Teste, a pochi passi dal parco, proponiamo in vendita un grazioso trilocale situato al secondo piano di una palazzina in cortina, dotata di ascensore.

L’immobile si distingue per l'ottima distribuzione degli spazi e per le recenti ristrutturazioni effettuate in alcune zone della casa.
L’ingresso conduce ad un ampio salone, con cucina separata ma parzialmente a vista, soluzione perfetta per chi desidera ambienti comunicanti senza rinunciare alla funzionalità. La cucina è stata recentemente ristrutturata, così come il bagno, finestrato e dotato di box doccia.

La zona notte è composta da una spaziosa camera da letto matrimoniale e da una comoda cameretta, entrambe semplici da arredare grazie alla loro forma quadrata.

Completa la proprietà un terrazzo vivibile, con esposizione ad est, che garantisce luminosità nelle ore mattutine e uno spazio esterno ideale per momenti di relax.

Completano la proprietà un posto auto coperto e una cantina.

Altre peculiarità dell'immobile : porta d'ingresso blindata, porte nuove, infissi del bagno e della cucina in alluminio anodizzato fonoassorbenti e predisposizione dei condizionatori in tutti gli ambienti.

Il comprensorio che ospita l’appartamento é dotato di : servizio di portineria, accesso privato tramite cancello automatico, ditta di pulizie per scale e ascensore e videocitofono.

Zona e collegamenti

Area tranquilla e ben servita, con Parco di Tor Tre Teste e Biblioteca Gianni Rodari a pochi passi.

Nelle vicinanze negozi, scuole, farmacie e supermercati.

Ben collegata grazie alla Metro C (Torre Maura e Torre Spaccata) e alle principali linee bus ATAC, con accesso rapido a via Prenestina, Via Casilina e al GRA.

Mostra tutto

Nelle vicinanze

Trasporto pubblico Trasporto pubblico
Torre Spaccata
Torre Spaccata
1,6 Km
Alessandrino
Alessandrino
1,6 Km
Centocelle
Centocelle
2,5 Km
Palmiro Togliatti
Palmiro Togliatti
2,6 Km
Togliatti
Togliatti
1,6 Km
Ricariche auto elettriche Ricariche auto elettriche
YouGo Prenestina | EnelX
1,2 Km
Esselunga Prenestino
2,1 Km
Eneldrive Autorimessa Primula
2,4 Km
Scuole Scuole
Scuole
1,5 Km
Scuola Andrea Doria
1,8 Km
scuola elementare Renzo Pezzani
1,9 Km
scuola elementare Fausto Cecconi
2,1 Km
Scuola Primaria F. De Sanctis
2,2 Km
Farmacia Farmacia
Zamponi
1,5 Km
Farmacia Dottoressa Piccoli Teresa
1,6 Km
Farmacia Sanasi
1,6 Km
Farmacia
1,7 Km
Ortopedia Ronconi
1,9 Km
Ospedali Ospedali
Policlinico Casilino
1,6 Km
Ambulatorio Policlinico Casilino – Edificio D
1,8 Km
Rome American Hospital
2,1 Km
Casa di riposo Bruno Buozzi
2,2 Km
Ospedali
2,2 Km
Supermercati Supermercati
Conad
160 m
Lidl
1,3 Km
Carrefour Market
1,6 Km
CRAI - Magrelli e Pierantozzi
1,6 Km
EuroSpin
1,7 Km
Negozi Negozi
Conad
230 m
Dimensione Outlet
1,7 Km
e... La merendina
1,8 Km
Negozi
1,9 Km
Shop & Go
2,0 Km
Bar Bar
Terzo Tempo
590 m
Traffic Live
1,1 Km
Alexander Bar
1,6 Km
medcafè
1,7 Km
Bar Delle Favole
1,9 Km
Ristoranti Ristoranti
Il Mendicante
1,1 Km
Domus Pinsa
1,2 Km
San Giorgio
1,3 Km
Millennium Center
1,5 Km
La Pinsa de li Dei
1,5 Km
Mostra tutto

Caratteristiche

Rif.:
61177516
Piano:
2 di 8 con ascensore (Piano medio)
Posti auto:
1
Terrazzi:
1
Camere da letto:
2
Arredamento:
Assente
Mostra tutto
Prezzo Prezzo
€ 239.000
Rata mutuo Rata mutuo
€ 1.127 / mese
Spese annue Spese annue
€ 960
Proponi il tuo prezzoProponi il tuo prezzo

Classe Energetica

G
G
G
G
G
G
G
G
G
EP globale non rinnovabile:
175.00 kW h/m² anno
EP globale rinnovabile:
175.00 kW h/m² anno
EP invernale del fabbricato:
EP estiva del fabbricato:
Anno di costruzione:
1984
Riscaldamento:
Autonomo
Tipo impianto:
A radiatori
Tipo alimentazione:
Metano

Prezzo ridotto di €1 (8%%)

Ti interessa visionare l'immobile?

Fissa un appuntamento  Fissa un appuntamento

Richiedi informazioni

Clicca su Leggi per aprire l'informativa
* Questi campi sono obbligatori

Calcola il tuo mutuo

Semplice e senza impegno
Anticipo

( % )
Mutuo

( % )

pochi semplici passi

inserisci i tuoi dati
Questionario completato
Grazie per aver richiesto un appuntamento senza impegno con un nostro Consulente del Credito e Assicurativo.

Hai inserito correttamente tutti i dati necessari e a breve riceverai una e-mail con un link da convalidare per inviare i tuoi dati.
Affiliato
Studio Torre Maura Srl
Via Dei Colombi, 3 00169 Roma (RM)

Il nostro staff


  • Alessia Giustini
    Coordinatrice

  • Daniele Mori
    Responsabile

  • Damiano Porta
    Affiliato
Via Dei Colombi, 3 00169 Roma (RM)
Zona: Torre Maura - Tor tre teste
Mostra su mappa
Affiliato
Studio Torre Maura Srl
Via Dei Colombi, 3 00169 Roma (RM)

2026 Tecnocasa Franchising S.p.A. - P. IVA 08365160152 - Via Monte Bianco 60/A 20089 Rozzano (MI). Ogni agenzia ha un proprio titolare ed è autonoma. Privacy policy | Policy utilizzo | Cookie policy